Om os
Byg nyt - erhverv
Byg nyt - privat
Referencer
Kontakt
Menu
Om os
Byg nyt - erhverv
Byg nyt - privat
Referencer
Kontakt
Referencer
Privatbyggeri
Enghavevej
Storparcel
Folden
Storparcel
Fjord Allé
Villa
Hvashøj
Villa
Oldager Alle
Sommerhus
Hvidbjergvej
Villa
Ringbrynjen
Villa
Under Hvidtjørnen
Villa
Diget
Storparcel
Fjald
Sommerhus
Opstrupsvej
Sommerhus
Lyngsletten
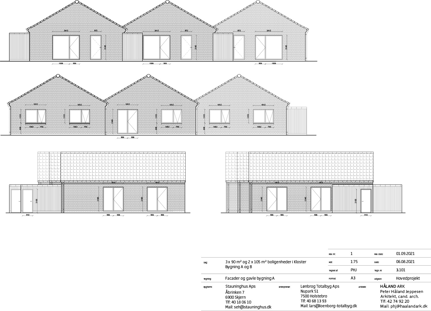
Rækkehus
Tritonvej
Rækkehus
Ragnar Tangs Plads